국공립 성산어린이집 대체신축 설계공모
Design Competition for the Alternative Construction of Public Seongsan Daycare Center
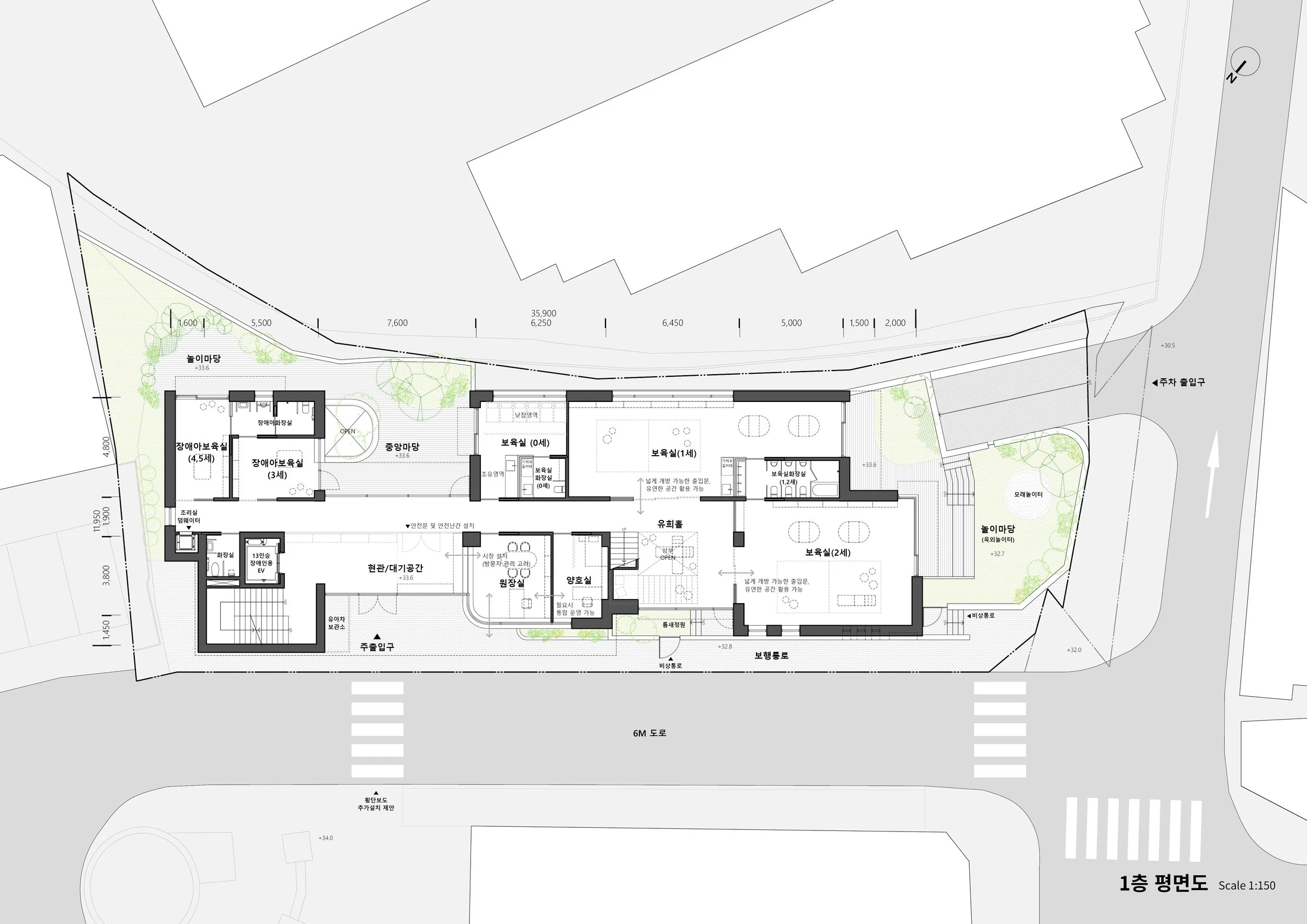
대지위치|서울시 마포구 성산동
대지면적|741.5㎡
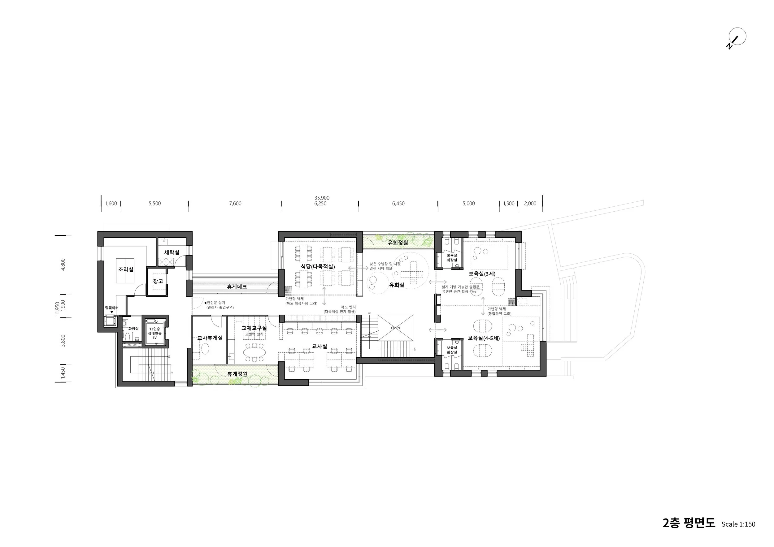
용도|노유자시설(어린이집)
규모|993.98㎡, 지하1층/지상2층
연도|2026
설계|텍소드 건축사사무소+네이밍 건축사사무소
Location|Seongsan-dong, Mapo-gu, Seoul
Area of Site|741.5㎡
Program|Elderly and Childcare Facility (Daycare Center)
Size|993.98㎡, B1/2F
Year|2026
Design cooperation with Naming Architects
어린이집은 아이들이 처음 사회와 관계를 맺는 첫 번째 장소이자 온전한 안도감을 누려야 하는 제2의 집이다. 이러한 생각을 바탕으로 위압감을 주는 거대한 단일 건물 대신 주변 동네의 맥락과 어우러지는 친숙한 스케일로 매스를 잘게 분절했다. 이렇게 흩어진 작은 집들은 연속된 기단형 담장으로 단단하게 묶여 아이들을 안전하게 품어주는 아늑한 하나의 마을로 완성된다.
내부 공간은 단절 없는 소통과 유연한 확장에 집중했다. 1층과 2층 사이를 비워낸 수직 보이드는 층간의 물리적 경계를 허물고 시선과 따뜻한 빛이 교차하는 커다란 입체적 거실을 만들어낸다. 각 보육실과 유희 공간은 가변형 도어를 통해 필요에 따라 대공간으로 확장되며 다 함께 어울리는 다채로운 활동을 수용한다.
건물 안팎으로는 아이들의 오감을 자극하는 골목길 풍경이 펼쳐진다. 보육실 특성에 맞춰 구성된 지상의 맞춤형 정원부터 다채로운 형태의 지붕들이 마을처럼 올록볼록 솟아오른 옥상 놀이터에 이르기까지 아이들만의 안전하고 흥미로운 탐험 동선을 구축했다.
나아가 건축의 전면을 셋백하여 단절되었던 가로에 이웃을 위한 넉넉한 보행로를 내어주었다. 해가 진 후에는 동네의 어둠을 밝히는 세심한 야간 조명을 더해 어린이집이 단순히 닫힌 시설이 아니라 아이들의 일상과 지역 사회를 동시에 보듬어주는 든든한 울타리로 자리 잡도록 계획했다.
마을을 담은 울타리
Boundary embracing a village

